Come Dividere Un Appartamento Di 100Mq : Frazionare Un Appartamento A Roma Praticheroma Geometra Roma Studio Tecnico

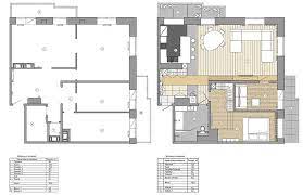
Come Dividere Un Appartamento Di 100Mq : Frazionare Un Appartamento A Roma Praticheroma Geometra Roma Studio Tecnico. Il progetto realizzato, si è sviluppato intorno alla prima indicazione della committenza di utilizzare la parte sinistra della casa per creare la zona notte. Grazie ad una sapiente ristrutturazione ma soprattutto grazie ad arredi modulari e pareti attrezzate. 55 mq + 42 mq + 3 mq ingresso: Sempre come modifiche alla muratura ho pensato di creare un disimpegno che possa dividere la zona giorno dalla zona notte, mentre lascerei con accesso dalla zona giorno, il vano ampio sulla sinistra che potrebbe diventare uno studio con angolo lettura / conversazione oppure una camera ospiti o ancora una sala giochi per il bimbo (mi dirà lei quale opzione le verrebbe piu' comoda o se ha necessità alternative). 40 mq + 47 mq + 3 mq ingresso:

Dal soggiorno al bagno, passando per l'ingresso e le camere da letto, 7 idee che potranno offrirci utili spunti per arredare con stile la nostra casa. Abbiamo anche voluto dare una divisione visiva e formale tra zona giorno e zona notte, tramite una porta a scomparsa. Se trovi difficoltà a decidere come dividere una casa, hai bisogno dell'aiuto di un esperto, che ti aiuterà nell'organizzazione degli spazi. Sempre come modifiche alla muratura ho pensato di creare un disimpegno che possa dividere la zona giorno dalla zona notte, mentre lascerei con accesso dalla zona giorno, il vano ampio sulla sinistra che potrebbe diventare uno studio con angolo lettura / conversazione oppure una camera ospiti o ancora una sala giochi per il bimbo (mi dirà lei quale opzione le verrebbe piu' comoda o se ha necessità alternative). Planimetria casa di 100 mq rettangolare.

Pin Su Case
Pin Su Case from i.pinimg.com
Sfruttando gli impianti esistenti, ora ci sono un bagno e una cucina in più in edicola newsletter Come dividere una casa di. Le planimetrie che abbiamo selezionato per l'occasione vi mostreranno come dividere al meglio gli spazi a seconda delle diverse esigenze. Appartamento di 150 mq prima della ristrutturazione: Come dividere un appartamento di 100 mq come valutare un immobile, i metodi di stima pi. Ecco una casa con soluzioni da copiare, utili anche in piccoli appartamenti. Come il corridoio obliquo e i vani a pianta triangolare che sfruttano la parte senza finestre,. Idee su come arredare o ristrutturare.

Se trovi difficoltà a decidere come dividere una casa, hai bisogno dell'aiuto di un esperto, che ti aiuterà nell'organizzazione degli spazi.

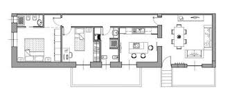
Come dividere un appartamento di 100 mq come valutare un immobile, i metodi di stima pi. Un'altra soluzione per dividere il proprio appartamento in maniera coerente ed efficace, senza privarsi della luce e privilegiando soluzioni che lascino gli ambienti ariosi e aperti, è quello di scegliere pareti in vetro. Vi mostreremo come arredare una casa di 100 mq attraverso 7 progetti di design a cui ispirarsi per la scelta dei materiali e la divisione degli spazi Planimetria casa di 100 mq rettangolare. Potrai progettare di creare due grandi bilocali che si caratterizzeranno per la presenza di. 46 appartamenti a partire da 59.000 €. 1,170 commenti commenti by admin 13:14. Idee su come arredare o ristrutturare. Appartamento di 150 mq prima della ristrutturazione: Un appartamento di 100 mq è stato diviso in bilocale + trilocale (da affittare): 55 mq + 42 mq + 3 mq ingresso: 35 mq + 45 mq + 3 mq ingresso Case oltre i 100 mq.

40 mq + 47 mq + 3 mq ingresso: Per risparmiare sui lavori e non spendere una fortuna occorre confrontare più preventivi per. Piantine, progetti, foto lavori abitazioni trilocali, quadrilocali Planimetria con nuovi allacci cucina e bagno la cucina potrà essere in modalità open space , quindi tutta aperta, prevedendo in questo caso un'unica pavimentazione. Anche in un appartamento spazioso lo spazio deve essere ben sfruttato e razionalizzato.

Casa Via Tortona Milano 100 Mq In Stabile Vecchia Milano Youtube
Casa Via Tortona Milano 100 Mq In Stabile Vecchia Milano Youtube from i.ytimg.com
Progetti case 100 mq, 110, 120, 130, 140,150mq. Una delle difficoltà maggiori di chi ristruttura è valutare correttamente i prezzi. Un appartamento di 100 mq è stato diviso in bilocale + trilocale (da affittare): Grazie ad una sapiente ristrutturazione ma soprattutto grazie ad arredi modulari e pareti attrezzate. Dal soggiorno al bagno, passando per l'ingresso e le camere da letto, 7 idee che potranno offrirci utili spunti per arredare con stile la nostra casa. Consulta la nostra ampia galleria. Planimetria con nuovi allacci cucina e bagno la cucina potrà essere in modalità open space , quindi tutta aperta, prevedendo in questo caso un'unica pavimentazione. Suddivisioni ottimizzate per la casa di meno di 100 mq nell'appartamento, contemporaneo e accessoriato, una metratura media è sufficiente per ricavare una zona giorno a più funzioni, tre.

Dividere un appartamento è una scelta che prima o poi si pone a tutti i proprietari di casa, ma soprattutto a chi possiede un immobile costruito qualche decennio fa.

Come il corridoio obliquo e i vani a pianta triangolare che sfruttano la parte senza finestre,. Ristrutturare un appartamento di 100 mq e risparmiare. Ho intenzione di dividere in due appartamenti una villetta (allego disegno). Ecco una casa con soluzioni da copiare, utili anche in piccoli appartamenti. Per dividere le due zone si può eventualmente utilizzare un tavolo da pranzo, oppure un'isola; Leggi come fare per l'autorizzazione amministrativa al comune e l'aggiornamento catastale. Appartamento di 150 mq prima della ristrutturazione: Dal soggiorno al bagno, passando per l'ingresso e le camere da letto, 7 idee che potranno offrirci utili spunti per arredare con stile la nostra casa. Considerando che bisogna rifare gli impianti, comperare 1 cucina ed un bagno con relative finiture. Abbiamo anche voluto dare una divisione visiva e formale tra zona giorno e zona notte, tramite una porta a scomparsa. Consulta la nostra ampia galleria. Infine chiaramente, da uno o a volte anche due bagni. 21 idee per frazionare un appartamento (fotogallery) come dividere un grande appartamento in due spazi più piccoli e funzionali?

Anche in un appartamento spazioso lo spazio deve essere ben sfruttato e razionalizzato. Potrai progettare di creare due grandi bilocali che si caratterizzeranno per la presenza di. Sfruttando gli impianti esistenti, ora ci sono un bagno e una cucina in più in edicola newsletter Per capire come dividere una casa di 100 mq, quindi un ambiente abbastanza grande, possiamo sfruttare la disposizione degli elementi di arredo: Sempre come modifiche alla muratura ho pensato di creare un disimpegno che possa dividere la zona giorno dalla zona notte, mentre lascerei con accesso dalla zona giorno, il vano ampio sulla sinistra che potrebbe diventare uno studio con angolo lettura / conversazione oppure una camera ospiti o ancora una sala giochi per il bimbo (mi dirà lei quale opzione le verrebbe piu' comoda o se ha necessità alternative).

Frazionamento Di Un Immobile Come Dividere Una Casa In Due
Frazionamento Di Un Immobile Come Dividere Una Casa In Due from www.this.it
Come dividere una casa di. Abbiamo anche voluto dare una divisione visiva e formale tra zona giorno e zona notte, tramite una porta a scomparsa. Salve, abbiamo preso questo appartamento di circa 100 mq, vorremmo un'idea di come potrebbe venire, considerando che vorrei la cucina distacca dal soggiorno. Le planimetrie che abbiamo selezionato per l'occasione vi mostreranno come dividere al meglio gli spazi a seconda delle diverse esigenze. Ecco una casa con soluzioni da copiare, utili anche in piccoli appartamenti. Infine chiaramente, da uno o a volte anche due bagni. Quando si decide di ristrutturare casa il primo passo da compiere è l'elaborazione del progetto. Ricostruzione di nuove pareti se nel progetto abbiamo ipotizzato di dividere la casa e distribuire le stanze in modo diverso.

Infine chiaramente, da uno o a volte anche due bagni.

Nel caso in cui l'appartamento non sia dotato di due ingressi indipendenti dovrai creare un ingresso indipendente ex novo (in questo caso è obbligatoria una richiesta al condominio che dovrà avvenire tramite l'amministratore). Sicuramente per ristrutturare completamente una casa di 100 mq:,demolizione, rimozione e smaltimento di tutta la casa da rifare. Dividere un appartamento è un investimento vantaggioso. Potrai progettare di creare due grandi bilocali che si caratterizzeranno per la presenza di. Solitamente, una casa di 100 mq, è composta da tutti gli ambienti utili che necessitano ad una famiglia. Planimetria casa di 100 mq rettangolare. Come suddividere le spese di una abitazione. Una delle difficoltà maggiori di chi ristruttura è valutare correttamente i prezzi. Vi mostreremo come arredare una casa di 100 mq attraverso 7 progetti di design a cui ispirarsi per la scelta dei materiali e la divisione degli spazi Planimetria con nuovi allacci cucina e bagno la cucina potrà essere in modalità open space , quindi tutta aperta, prevedendo in questo caso un'unica pavimentazione. Lasciamoci allora ispirare dalle proposte dei nostri esperti e scopriamo insieme 7 ambienti da copiare in un appartamento da 100 mq: 21 idee per frazionare un appartamento (fotogallery) come dividere un grande appartamento in due spazi più piccoli e funzionali? Dividere un appartamento è una scelta che prima o poi si pone a tutti i proprietari di casa, ma soprattutto a chi possiede un immobile costruito qualche decennio fa.